Προϊόντα

Προϊόντα

ZN85-40.5 VCB εσωτερικού χώρου
  • ZN85-40.5 VCB εσωτερικού χώρουZN85-40.5 VCB εσωτερικού χώρου
  • ZN85-40.5 VCB εσωτερικού χώρουZN85-40.5 VCB εσωτερικού χώρου

ZN85-40.5 VCB εσωτερικού χώρου

Το ZN85-40.5 Indoor VCB είναι μια σημαντική ηλεκτρική συσκευή που χρησιμοποιείται σε συστήματα ισχύος μέσης τάσης. Η Taili Electric είναι επαγγελματίας κατασκευαστής αυτού του προϊόντος και πολλών άλλων τύπων ηλεκτρικών προϊόντων. Αυτό το VCB έχει σχεδιαστεί για εσωτερικά περιβάλλοντα και είναι υπεύθυνο για τον έλεγχο (κλείσιμο/άνοιγμα), την προστασία και την απομόνωση κυκλωμάτων.

Βασικό χαρακτηριστικό:

Μέσο πυρόσβεσης τόξου: Κενό

Τόπος εγκατάστασης: Εσωτερικός χώρος

Βασική λειτουργία: Έλεγχος και προστασία

ZN85-40.5 indoor VCBZN85-40.5 indoor VCB

ZN85-40.5 indoor VCB

Βασικό χαρακτηριστικό:

Μέσο πυρόσβεσης τόξου: Κενό

Τόπος εγκατάστασης: Εσωτερικός χώρος

Βασική λειτουργία: Έλεγχος και προστασία

Τυπικά σενάρια εφαρμογής

Το ZN85-40.5 Indoor VCB χρησιμοποιείται ευρέως σε εσωτερικούς υποσταθμούς που απαιτούν παροχή τάσης 35 kV. Είναι συναντάται συνήθως σε:

· Βιομηχανικές και μεταλλευτικές επιχειρήσεις: Ο κύριος σταθμός ή η αίθουσα διανομής εργαστηρίου μεγάλων εργοστασίων και ορυχεία.

· Εμπορικά κτίρια: Η κεντρική αίθουσα διανομής μεγάλων εμπορικών συγκροτημάτων και πολυώροφων κτιρίων.

· Υποδομή: Οι υποσταθμοί διανομής βασικών εγκαταστάσεων όπως μετρό, αεροδρόμια, λιμάνια και νοσοκομεία.

· Σταθμοί ηλεκτροπαραγωγής: Το σύστημα τροφοδοσίας του εργοστασίου.

· Σύστημα ισχύος: Η εξερχόμενη πλευρά χρήστη περιφερειακών υποσταθμών.


Συνήθως εγκαθίσταται σε μεταλλικά θωρακισμένα αποσπώμενα ερμάρια διακόπτη και χρησιμεύει ως έλεγχος και προστασία πυρήνα συστατικό ολόκληρου του συστήματος διανομής ηλεκτρικής ενέργειας.

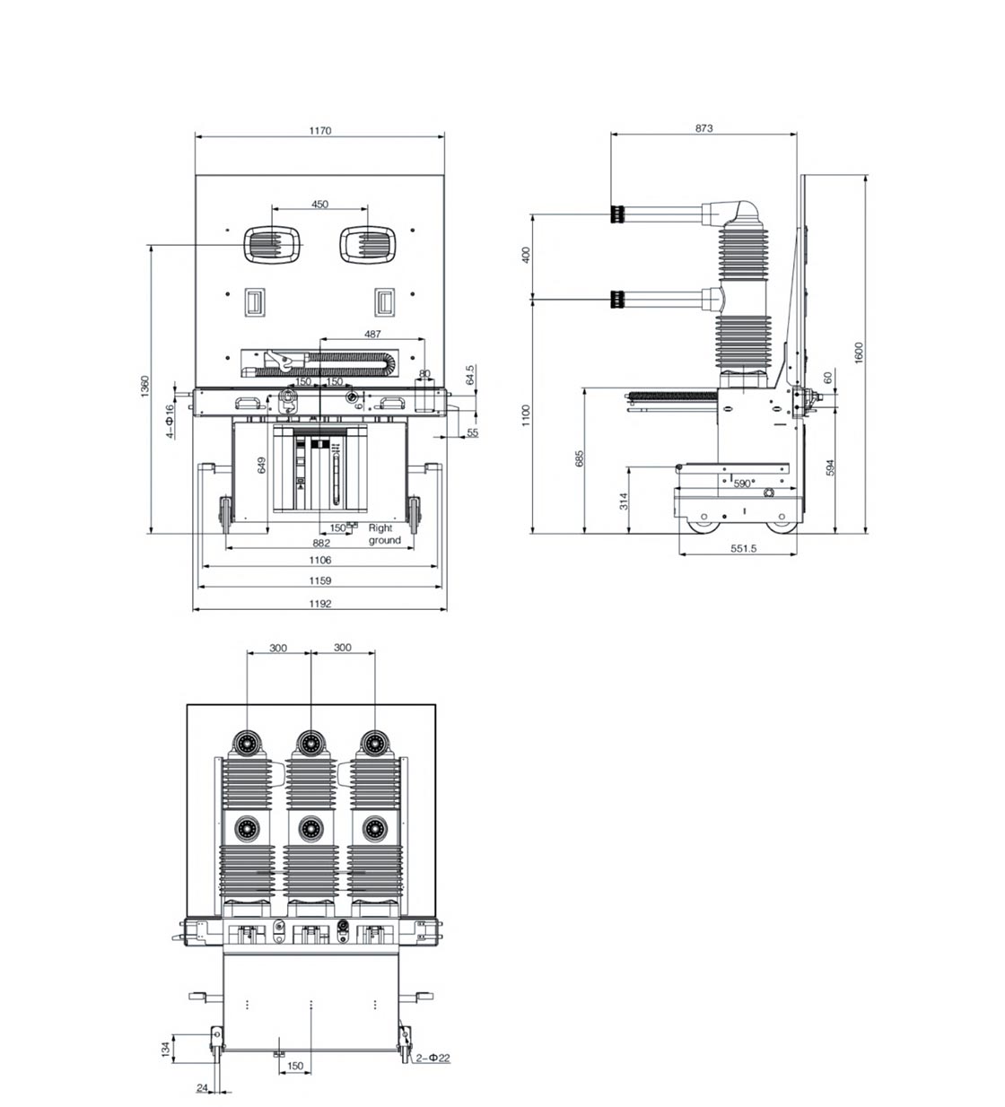
Εμφάνιση και μέγεθος εγκατάστασης (mm)

ZN85-40.5 indoor VCB

Συνεργείο

ZN85-40.5 indoor VCBZN85-40.5 indoor VCB

Αποθήκη

ZN85-40.5 indoor VCBZN85-40.5 indoor VCB

Δώστε τις παρακάτω πληροφορίες και θα μπορέσουμε να προσφέρουμε καλύτερες υπηρεσίες.

Σενάρια εφαρμογής προϊόντων  
Τεχνικές παράμετροι προϊόντος  
Hot Tags: ZN85-40.5 VCB εσωτερικού χώρου, Κίνα, Κατασκευαστής, Προμηθευτής, Εργοστάσιο
Αποστολή Ερώτησης
Πληροφορίες επαφής
  • Διεύθυνση

    Νο. 81, δρόμος Jingsan, ζώνη οικονομικής ανάπτυξης, πόλη Yueqing, επαρχία Zhejiang, Κίνα

  • ΗΛΕΚΤΡΟΝΙΚΗ ΔΙΕΥΘΥΝΣΗ

    taili@talpw.com

Για ερωτήσεις σχετικά με μετασχηματιστή, διακόπτη, διακόπτη μέσης τάσης ή τιμοκατάλογο, αφήστε το email σας σε εμάς και θα επικοινωνήσουμε εντός 24 ωρών.
X
Χρησιμοποιούμε cookies για να σας προσφέρουμε καλύτερη εμπειρία περιήγησης, να αναλύσουμε την επισκεψιμότητα του ιστότοπου και να εξατομικεύσουμε το περιεχόμενο. Χρησιμοποιώντας αυτόν τον ιστότοπο, συμφωνείτε με τη χρήση των cookies από εμάς. Πολιτική Απορρήτου
Απορρίπτω Αποδέχομαι